Помещение своб.назн., 53 м², 1/3 эт.

Москва, Москва, Нижний Сусальный переулок, 5с1

295 000 руб. / мес.

5 567 руб./м²
Помещение своб.назн., 53 м², 1/3 эт.

Описание Объект №5477

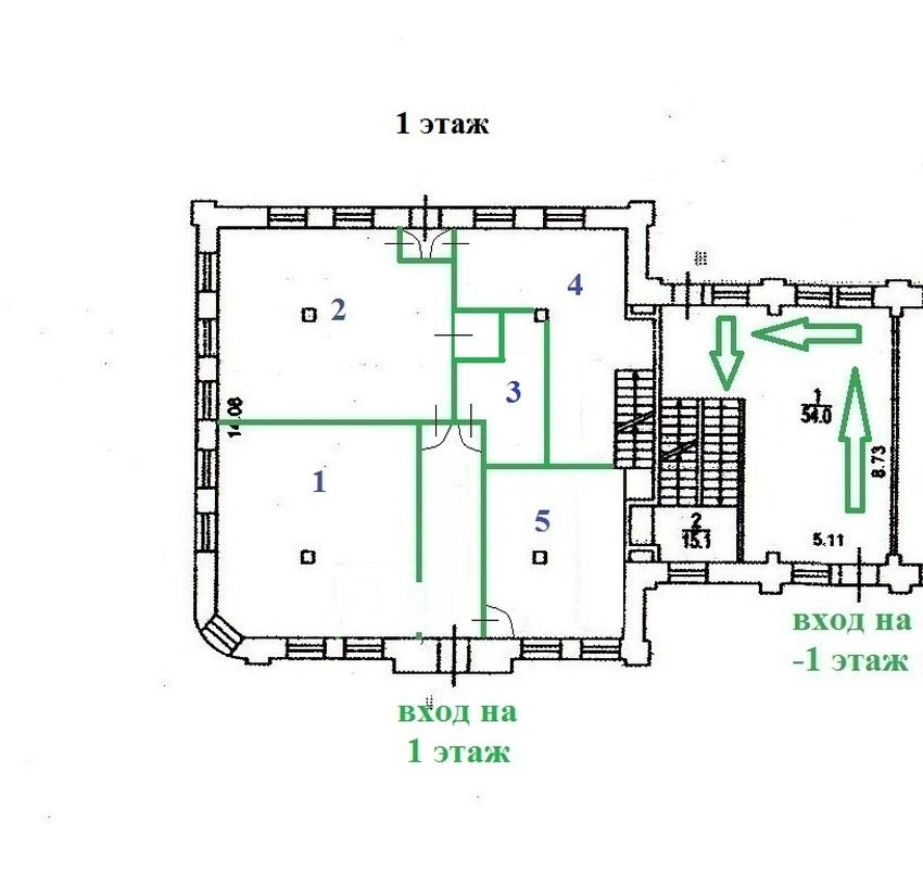
Торговое помещение на 1 этаже, 1го строения, 53кв.м.
Первая линия, выход на Нижний Сусальный переулок.
Выход из метро Курская и D2/D4 в нескольких шагах от здания.
Помещение с окном. На плане помещение 2
Есть место для рекламных вывесок.
Ремонт за выездом арендатора.
Назначение: торговое
Стоимость за месяц: 295 000 руб.
Ставка за кв.м в год: 66 800 руб.
Состояние: с отделкой

  • Этаж :

  • Высота потолков :

  • Вход :

  • Площадь :

  • 1

  • 3

  • Общий

  • 53 м²

  • Этажность :

  • Доступ на объект :

  • Кол-во комнат :

  • Тип здания :

  • 3

  • 24/7

  • 0

  • Здание свободного назначения

Карта Москва, Нижний Сусальный переулок, 5с1

Похожая недвижимость

Офис, 188 м², 5/5 эт.
  • Аренда
314 000 руб. / мес.

Коммерческая недвижимость

Офис, 188 м², 5/5 эт.

Москва, улица Гиляровского, 65с1

Помещение своб.назн., 112,8 м², 1/6 эт.
  • Аренда
350 000 руб. / мес.

Коммерческая недвижимость

Помещение своб.назн., 112,8 м², 1/6 эт.

Москва, улица Земляной Вал, 34с3А

Офис, 200 м², 4/4 эт.
  • Аренда
366 667 руб. / мес.

Коммерческая недвижимость

Офис, 200 м², 4/4 эт.

Москва, 1-й Кожевнический переулок, 6с1

Помещение своб.назн., 46,2 м², 1/3 эт.
  • Аренда
370 000 руб. / мес.

Коммерческая недвижимость

Помещение своб.назн., 46,2 м², 1/3 эт.

Москва, Большая Серпуховская улица, 8/7с2

Офис, 187,4 м², 2/8 эт.
  • Аренда
359 200 руб. / мес.

Коммерческая недвижимость

Офис, 187,4 м², 2/8 эт.

Москва, Дербеневская улица, 15Б

Офис, 212 м², 8/9 эт.
  • Аренда
360 000 руб. / мес.

Коммерческая недвижимость

Офис, 212 м², 8/9 эт.

Москва, Бауманская улица, 6с2

Офис, 227,5 м², 3/5 эт.
  • Аренда
369 688 руб. / мес.

Коммерческая недвижимость

Офис, 227,5 м², 3/5 эт.

Москва, Переведеновский переулок, 17к1